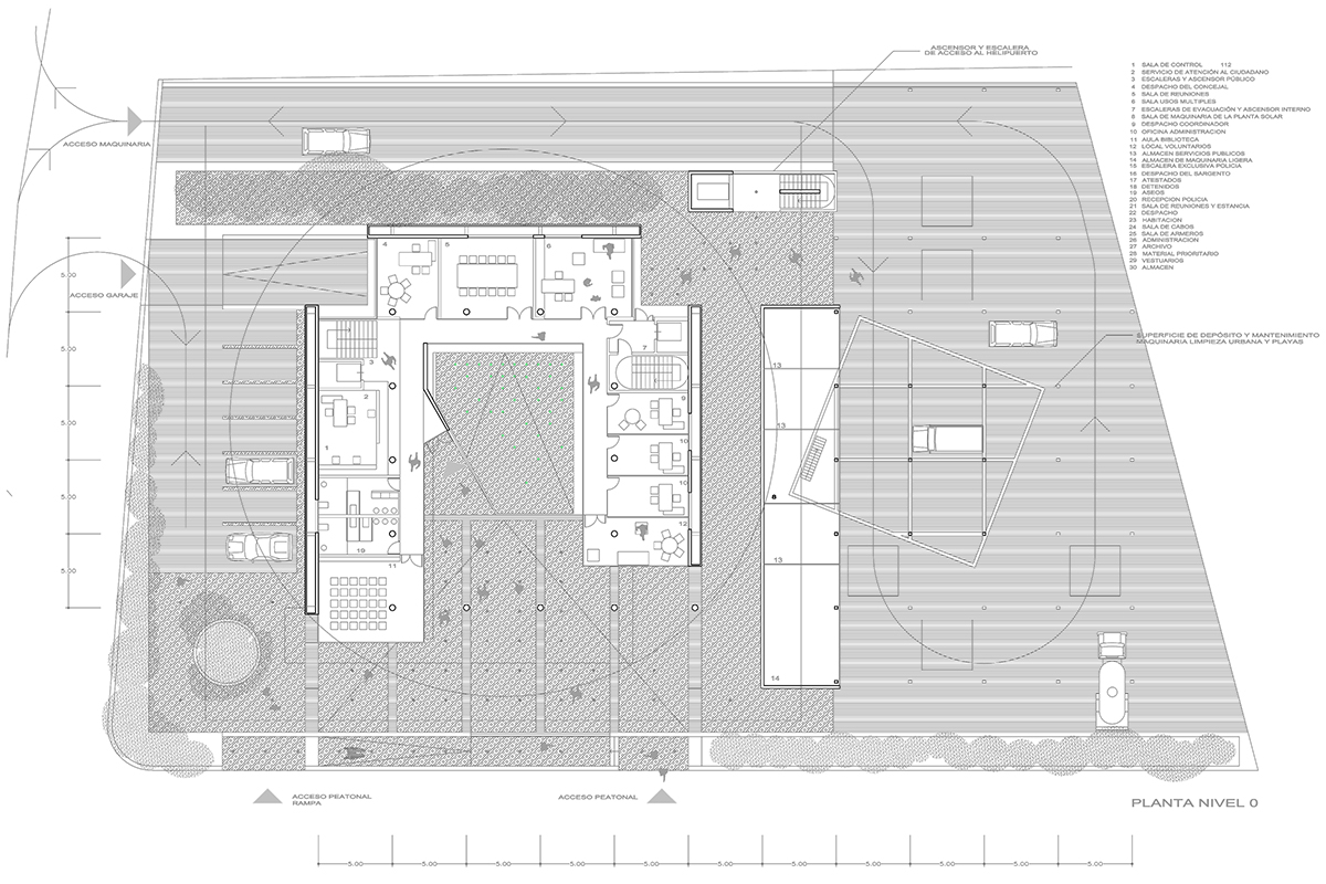
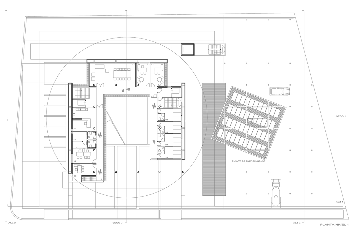
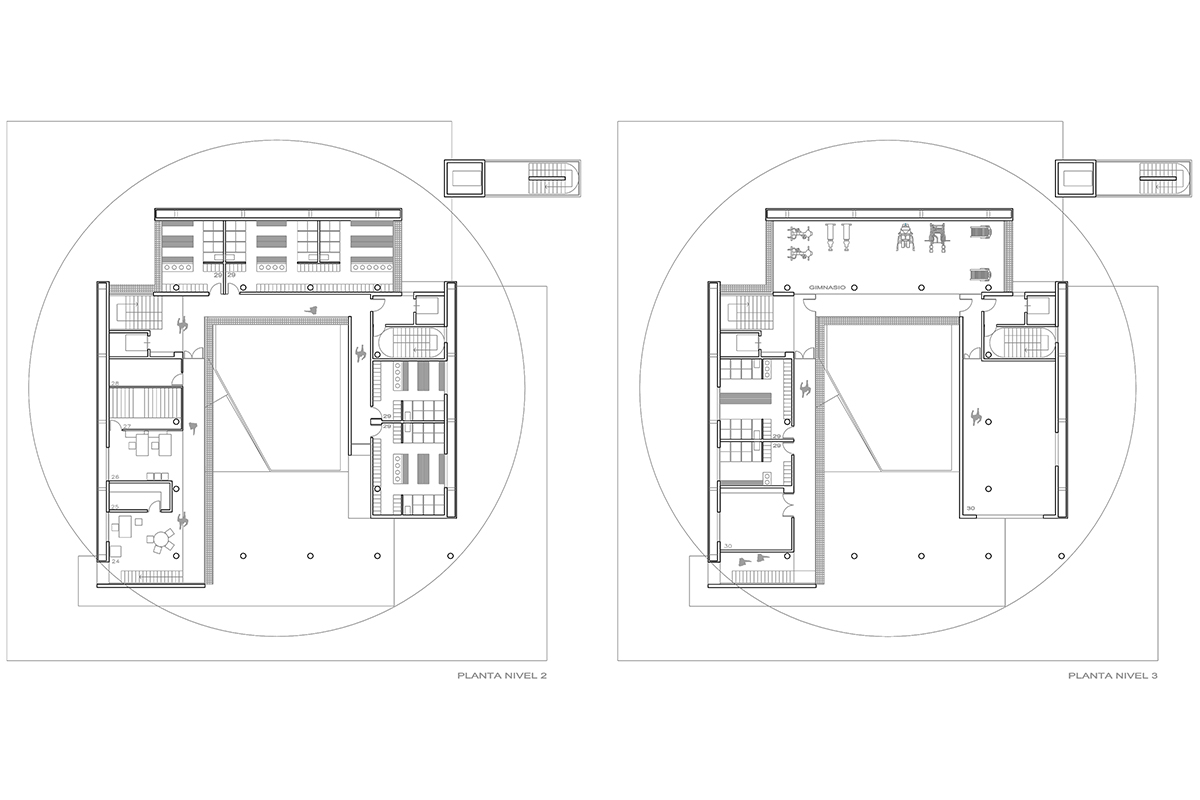
La composición del edificio se genera a partir de las premisas básicas del concurso: la necesidad del helipuerto en su cubierta y las características del medio ambiente agresivo. Se parte pues de un círculo de 37 metros de diámetro correspondiente a la helisuperficie. Un cuadrado inscrito conforma la sustentación primaria y propone la envolvente del edificio. La orientación y los fuertes vientos dominantes de levante y poniente condicionan la protección del mismo que se cierra en tres de sus lados y se abre hacia el norte. Las tres alas se configuran en contenedores del programa que son: a levante, azul, policía; a poniente, naranja, protección civil; y a mediodía, verde, servicios públicos de mantenimiento y limpieza. Se completa el programa con zonas de servicios comunes en planta baja, el garaje en planta sótano y el gimnasio en la cuarta. En la relación directa con el edifico se sitúa ocupando la zona oeste del solar la amplia superficie de almacenamiento y mantenimiento de maquinaria para servicios públicos en la que se incluyen los almacenes y una zona cubierta con instalación de captación solar. El núcleo de comunicación vertical que da servicio a la helisuperficie se configura como elemento compositivo de rótula entre el edificio principal y las citadas zonas de servicio.









