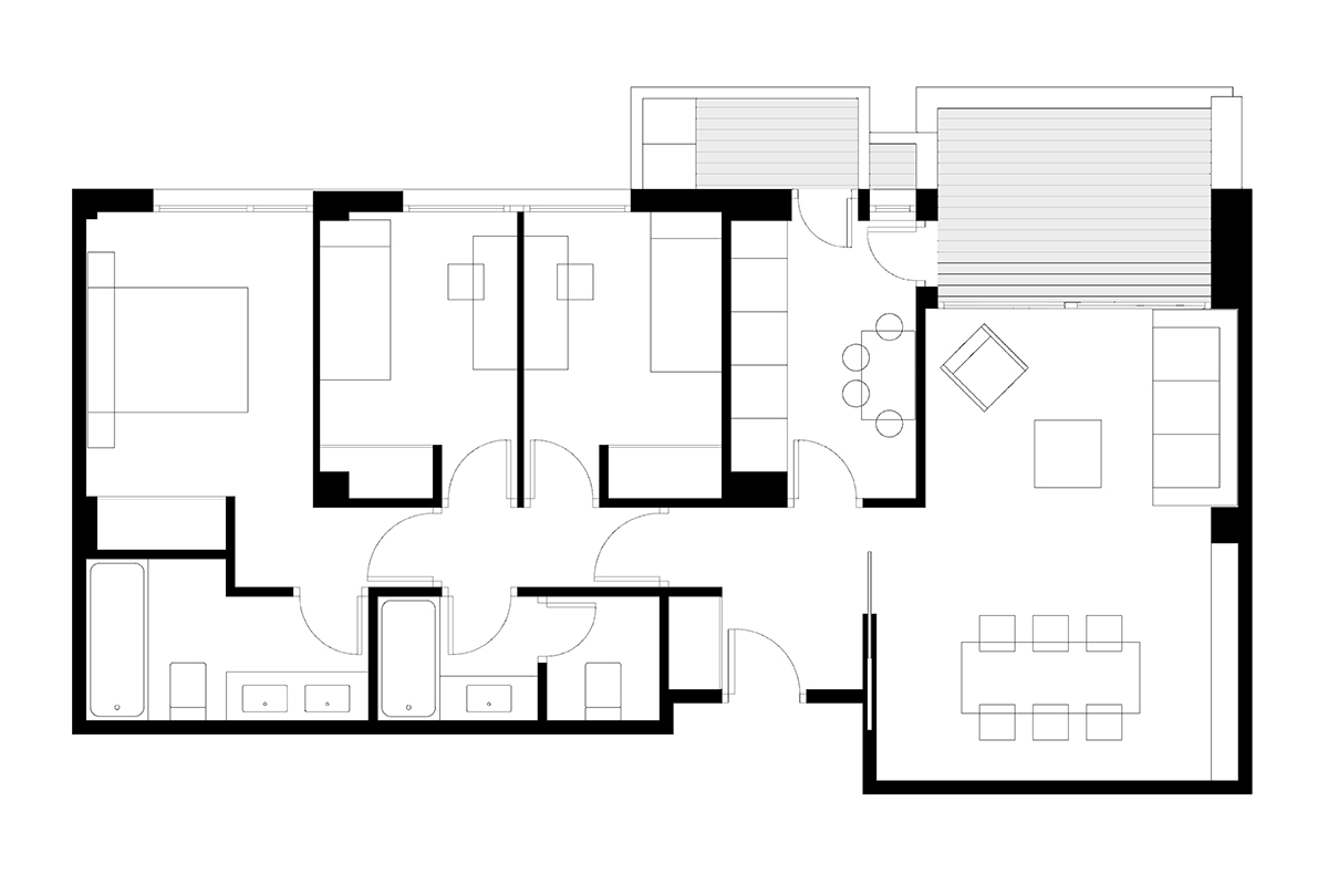
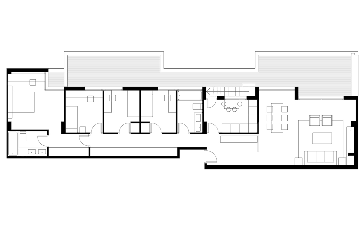
Esta construcción residencial, ubicada en el municipio de Las Rozas (Madrid, España), consiste en una urbanización de 84 viviendas, garaje, trasteros, jardín, piscina y zonas deportivas. El conjunto se organiza en dos bloques longitudinales paralelos entre sí, dispuestos en posición ortogonal respecto al acceso peatonal a la parcela. Las edificaciones son rodeadas por un espacio verde acondicionado como zona de estancia y espacio de juego infantil.













