Menu

48 VIVIENDAS V.L. EN VALDEBEBAS

 

El proyecto consiste en un conjunto residencial de 48 viviendas ubicado en Valdebebas (Madrid, España), una zona que ha experimentado un gran desarrollo inmobiliario en la última década, y que sirve como muestra de las propuestas arquitectónicas más recientes en el ámbito de la vivienda colectiva.

Nuestro diseño busca potenciar la actividad urbana y la complejidad tipológica de la zona, combinando el uso terciario a diferentes escalas y el residencial. Se deja una gran y diáfana superficie comercial a nivel de planta baja, sobre la que se distribuyen doce pequeños locales comerciales en primera planta. Este nivel sirve de separación formal y de uso con las plantas residenciales del complejo, que quedan así sobreelevadas aislándose acústicamente y consiguiendo un mayor grado de ventilación natural y soleamiento. El espacio privado se complementa con zonas comunes deportivas y de esparcimiento.

La parcela, de 9.460 m2 de superficie, aloja dos edificios que se han entendido como una unidad . El primero y mayor de ellos, donde se alojan 78 viviendas en once plantas, obtiene su forma final a partir de la extracción de volumen de un paralelepípedo perfecto. Esto, además de otorgar una identidad propia al edificio, permite la creación de numerosas azoteas soleadas y la reserva de volumen para el segundo edificio, de menor entidad, donde se distribuyen 48 viviendas en siete plantas.

La composición de los edificios en pastillas escalonadas de gran altura genera un tipo de edificio híbrido entre bloque lineal y desarrollo en altura.

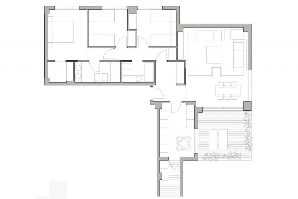
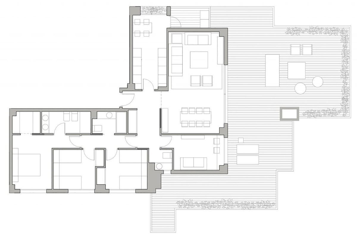
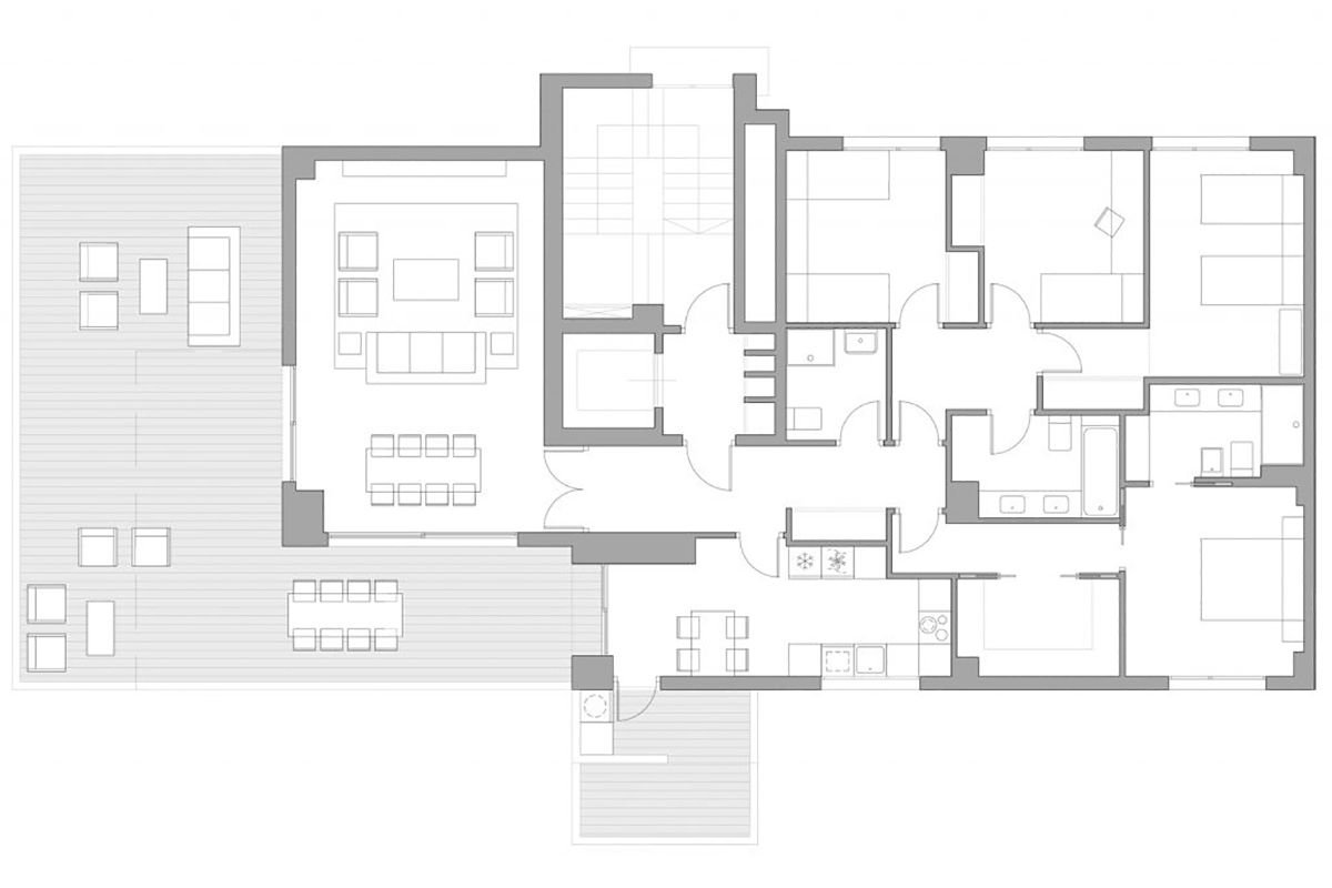
El proyecto también nos ha permitido realizar una investigación tipológica sobre las posibilidades de la vivienda actual. Se han combinado viviendas de entre dos y cuatro dormitorios, favoreciendo así una ocupación social más rica que en otras promociones del entorno. Además, se priorizan los espacios comunes de la vivienda, otorgando una importante superficie de vivienda al salón y a las grandes terrazas generadas por la sustracción de volumen en los testeros del edificio. La comunicación y la fluidez de espacios también ha sido un aspecto fundamental a la hora de organizar las viviendas, favoreciendo conexiones y visuales múltiples entre cocina, salón y terraza.

Cliente
Inbisa
Estado
Construido
Fecha de inicio de obra
Marzo 2016
Fecha de fin de obra
Agosto 2017
Superficie
10.873m2
Tipo de obra
Residencial